Property review- By NZ property uncle -Vincent H 0222 6666 47
- vincent5325
- 2025年7月24日
- 讀畢需時 5 分鐘
2/52 Cherry Road, Highland Park, Auckland
SOLD at : $888.8K - 04/07/23
Tender closes Wednesday 30th July 2025 at 3:00pm (Unless sold prior)
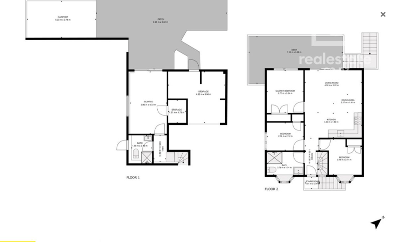
⚠️ 從投資角度看可能的缺點:最大的問題沒有車庫
改造潛力已經沒有太多空間
共有地(Cross-Lease Title,若適用)
很多 East Auckland 的舊式單位是共有地權,這會限制未來的開發潛力。
進行擴建或重大修改時,需取得其他共同擁有者的同意,手續較繁瑣。
資本增值潛力有限
位於後排或非臨街的單位,在轉售時的市場吸引力通常低於獨立屋或臨街房產。
因為土地面積小,長期升值空間也可能受到限制。
建築面積小/格局限制
此類單位多為2房,對家庭或希望加建的買家吸引力有限。
可進行的價值提升(例如改建、翻新)空間較小。
屋齡較老,維護成本可能增加
若為1970–1980年代建築,長期可能面臨水管、屋頂、電線、隔熱等維修問題。
投資者需預留更多的維修預算。
租金報酬率可能一般
Highland Park 屬成熟區域,雖租屋需求穩定,但房價相對較高,導致租金回報率(yield)不如某些西區或南區的低價區域。
共用空間/車道(若有)
單位型物業可能需與其他住戶共用車道或前院,容易引發管理或鄰里糾紛。
有時雖無正式的「Body Corporate」,但仍需共同維護某些區域,影響投資人控制權。








🏡 房產概況|19A Ervine Place,Bucklands Beach- Floor 145 m2 / Land: 195 m2
全地權,北向日照佳,安靜的盡頭小巷,土地面積約 195 平方米,低維護成本。
2024 年全新完工,雙層設計,4 間雙人房(含一間樓下套房),3 間浴室,開放式廚房與客餐廳,配有冷暖空調、雙層玻璃、室內車庫。
步行可至 Macleans Primary、Intermediate 及 Macleans College,屬學區名校帶,生活機能佳,近商店、公園與 Half Moon Bay 渡輪。
🔍 紐西蘭房產大叔觀點|深入剖析
🔹 多功能設計提升價值
樓下獨立套房設計,適合長輩同住、Airbnb 短租或學生出租,具備額外現金流潛力。
🔹 投資回報與保值力
全新建物、免維修壓力,適合忙碌家庭或無意翻修者。
強學區加持,具備長線資本增值實力,租金市場穩健。
北向採光與室內空間規劃實用,是家庭買家首選格局。
🏫 學區超強,投資與自住皆宜:
本物件坐落於 Bucklands Beach 熱門學區,涵蓋:
Macleans Primary School
Bucklands Beach Intermediate
Macleans College
全部 步行可達,節省接送時間,孩子也能獨立上學,家長無後顧之憂。
✨ 物件亮點一覽:
✅ 全地權產權,無地租煩惱
✅ 北向朝陽,整日陽光充沛
✅ 樓下獨立套房,適合 Airbnb、寄宿學生或三代同堂
✅ 低維護庭院,生活更輕鬆
✅ 安靜盡頭小巷(cul-de-sac),私密性與安全性兼具
✅ 步行可達 Macleans Primary / Intermediate / College,三大名校加持
✅ 靠近商店、公園與 Half Moon Bay 渡輪,生活機能完善






✅ 總結|紐西蘭房產大叔給的評語:
19A Ervine Place 是 Bucklands Beach 社區中的新星:
現代高規格建築
學區強 + 低維護 + 靈活空間
市場預估成交區間:$1.3M–$1.5M
若搭配有效行銷與預熱買家,成交可望挑戰 CV 甚至更高。
🏡 物件總覽|16A Cairngorm Place, Highland Park
Auction 5th Aug 6pm
全地權 Freehold,單層設計,2024 年建成,屋齡新穎。
建築面積約 105 m²,土地簡潔 252 m²,室內無需額外維護壓力。
配備雙層玻璃窗、地暖與時尚裝潢,四季舒適。
完整開放式格局,廚房直通客餐廳,並連結帶百葉頂與氛圍燈的戶外甲板,非常適合戶外聚會。
設有車棚停車位與簡易打理的庭院。
📍 位置與周邊生活機能
位於 Highland Park 安靜家庭友好型盡頭小巷(cul-de-sac),私隱與安全兼備。
距全新 Pak’nSave、Woolworths 超市僅數分鐘車程,生活便利。
鄰近主要購物中心、公園、運動場與校園,交通順暢,位於主幹道與公車路線上。
Highland Park 為 Howick 區成熟住宅區,環境舒適,社區氛圍穩定。
🏷 定價與市場戰略
預計拍賣日:2025 年 8 月 5 日,除非提前成交。
OneRoof 自動估價約 $890K,估價範圍 $840K–$945K,2024 年市議會評估值為 $870K。
Highland Park 區域中位價約 $1.08M,過去一年區域房屋均價略低於 CV(-1.77%)







分析重點:
同街區、2 房/2 衛或 3 房物件成交價約 $825K–$1.6M,具體價差依格局與新舊程度。
本案屬近全新 2 房/2 衛,配置優異,但尺寸較小,可望介於 $900K–$1.0M 區間。
🔍 紐西蘭房產大叔觀點
低維護、單層設計:適合退休族、年輕首購或小家庭,減輕生活壓力。
高端格局配備:地暖、雙層玻璃、層次甲板,提升保值與吸引力。
地段穩定:社區成熟,生活機能完整。
市場機會:近期成交顯示此類新穎設計具一定溢價能力,特別對想簡化生活者極具吸引。
✅ 結論與建議
16A Cairngorm Place 是 一棟近全新、低維護、功能完整的高質感單層住宅,非常適合希望移除房屋維護負擔並兼具品質的買家。
預估成交區間:$900K–$1.05M,拍賣策略可設定在 $950K 作起點,視開價與競爭狀況調整。
若您希望深入了解預期租金、現金流或拍賣當日策略模擬,我可以為您準備更完整資料與應對方案。
27 Judkins Crescent, Cockle Bay, Auckland
Auction 5th Aug 2025
🔍 周邊售價對比(Judkins Crescent 區域)
根據官方批文資料與 CV:
10 Judkins Crescent(3房+175 m²):2024 年 7 月成交價約 $1.40Mr
31A Advene Road(鄰街 5 房大宅):2024 年 7 月成交約 $1.482M;類似高價產品也同時出現於同區
此外,街區相近的其他物件(如 58 或 16 Judkins Crescent) CV 在 $1.25M–$1.40M 之間,新舊與土地差異可為估值區間提供參考。
✅ 綜合這些資料,本案憑藉土地大、房間配置完整,估值區間應在 $1.35M–$1.50M 間具吸引力,若買家願意接手翻新空間,潛力脫穎而出。
🔍 紐西蘭房產大叔觀點:
低維護潛力高:1970年代建築結構穩固,格局完整,適合進行裝修增值。
環境與地段優勢:坐落於 Cockle Bay 停車寬敞、庭院空間大。步行可達 Cockle Bay Primary School(Decile 10)與 Howick College(Decile 8)。
社區氛圍佳:安全、親水、鄰近 Botany 及購物中心,適合家庭長期定居。Reddit 區域用戶形容為「靠海安全社區,高質感生活地段」。
✅ 總結與建議策略:
27 Judkins Crescent 優勢明顯:
土地大(822 m²)、房間多(4 房)、有兩個客廳/靈活空間
蘊含結構質地穩固、可翻新增值潛能
Cockle Bay 社區環境安全,學區優異
📍 建議:
拍賣起始價設在 $1.35M–$1.40M 區間可吸引對翻新市場有興趣買家;
若能強調「陽光前露台+庭院+步行至海灘與學校」等亮點,可有效提升競標熱度。



📌 專業聲明:以上所有分析與建議,均根據目前可取得的市場資訊、近期成交紀錄、市議會估價(CV)、自動估價系統(AVM)、區域中位售價、地形與土壤資料(包括洪水區劃)、建築年份與條件,以及房地產交易平台(如 OneRoof、Homes.co.nz、RealEstate.co.nz、HouGarden)所提供的公開數據,進行全面比對與交叉驗證。
所有資訊均以2025年7月市場實況為基礎,旨在提供您一份誠實、透明且依據實際資料所整理的市場分析,協助買家與賣家做出最合適的房產決策。



留言